A VENDRE - BLOT IMMOBILIER LORIENT - IMMEUBLE A LORIENT

Coup de cœur

Maison 6 pièce(s)

Réf : 553PLV

367 500 € FAI

Honoraires : *

Le bien est situé à : LORIENT (56100)

LORIENT (56100)

  • 220 m²
  • 4 chambre(s)
  • 6 pièce(s)
portrait

Votre interlocuteur

Philippe LE VAILLANT

A VENDRE - BLOT IMMOBILIER LORIENT - IMMEUBLE A LORIENT

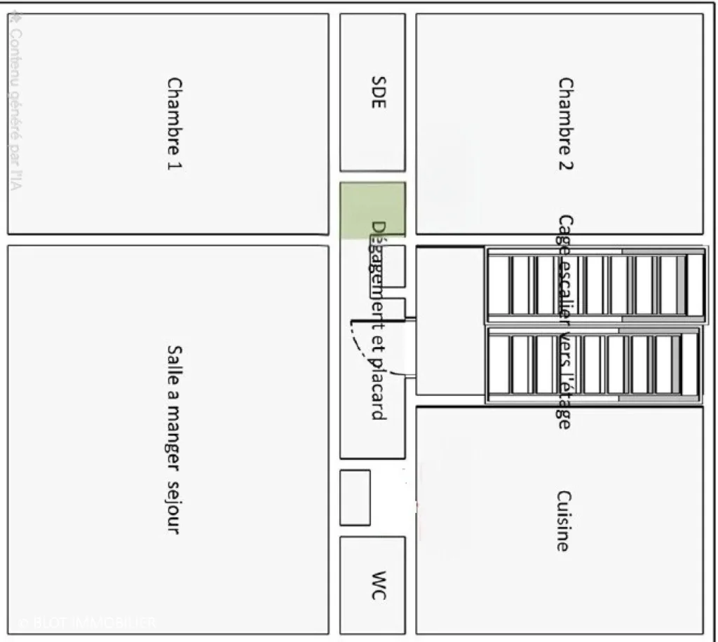
Grande maison proche gare se prêtant à une division par étage pour la création d'appartements.
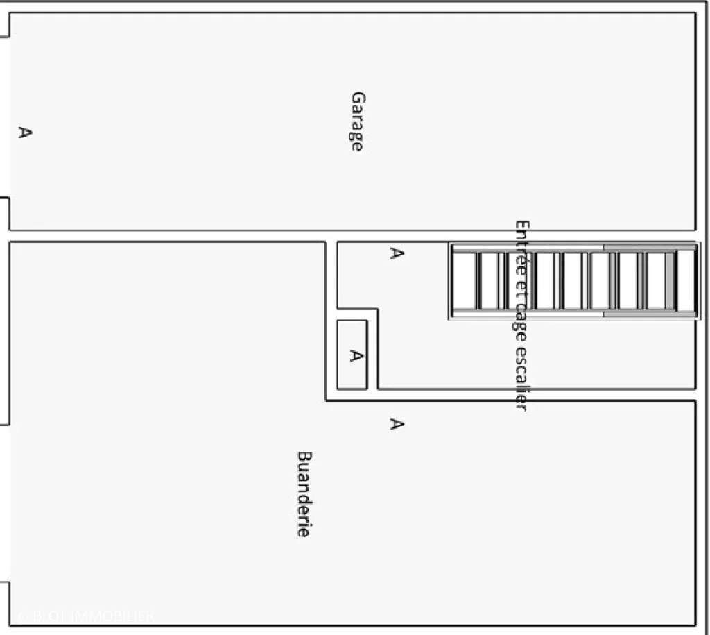
Au rez-de-chaussée : deux garages et un espace à aménager, avec accès à un petit jardin.
Au 1er et 2ᵉ étage : deux appartements identiques composés d'un salon-séjour, de deux chambres, d'une cuisine, d'un WC et d'une salle d'eau.
Au 3ᵉ : espace brut sur dalle béton.
En sous-sol : des caves.
L'ensemble du bien demande une rénovation complète, mais la structure est saine.

Réf : 553PLV
CLASSE ENERGIE : E - CLASSE CLIMAT : E

Les informations sur les risques naturels, miniers, ou technologiques, auxquels ces biens sont exposés, sont disponibles sur le site : www.georisques.gouv.fr

Ce bien vous est présenté par l'agence BLOT IMMOBILIER LORIENT- 39, rue de la Villeneuve - 56100 LORIENT
Téléphone : 02 97 37 90 00

Au prix de : 367 500 euros FAI dont 5 % TTC d'honoraires à la charge de l'acquéreur
Prix net vendeur : 350 000 euros

  • Maison
  • Construction : 1956
  • 4 chambre(s)
  • Surface : 220 m2
  • 6 pièce(s)
  • Exposé Sud-Ouest
  • Chauffage : Individuel

Localisation

Diagnostic de performance énergétique (DPE)

  • A
  • B
  • C
  • D
  • E
  • F
  • G
  • Indice d'émission de gaz à effet de serre (GES)

    • A
    • B
    • C
    • D
    • E
    • F
    • G

    Coûts annuels d’énergie du logement

    Les coûts sont estimés en fonction des caractéristiques du logement et pour utilisation standard sur 5 usages (chauffage, eau chaude sanitaire, climatisation, éclairage, auxiliaires)

    Entre 2720€ et 3730€ par an

    Évalution du coût énergétique
    Date(s) d’indexation des prix moyens des énergies (abonnements compris) : 1erjanvier2021

    Ma simulation de financement

    Durée du prêt

    ans
    ans
      %

      Mon remboursement mensuel

      0 €(1)
      (1) Cette simulation non contractuelle est communiquée à titre informatif, en se basant sur les taux moyens du marché.

      Envie de visiter ?
      Une question sur ce logement ?

      portrait

      Votre interlocuteur

      Philippe LE VAILLANT

      Agence immobilière - Lorient

      5
      13

      39 rue de la Villeneuve
      56100 LORIENT

      Je choisis un ou des créneaux
      pour organiser une visite

      jeudi • 23 avril 2026

      vendredi • 24 avril 2026

      samedi • 25 avril 2026

      lundi • 27 avril 2026

      mardi • 28 avril 2026

      mercredi • 29 avril 2026

      jeudi • 30 avril 2026

      vendredi • 1 mai 2026

      samedi • 2 mai 2026

      lundi • 4 mai 2026

      mardi • 5 mai 2026

      mercredi • 6 mai 2026

      jeudi • 7 mai 2026

      vendredi • 8 mai 2026

      samedi • 9 mai 2026

      * champs obligatoires
      * champs obligatoires

      (1) En validant ce formulaire, vous acceptez que les informations saisies soient exploitées dans le cadre de la mise en relation avec Blot Immobilier.
      Conformément au règlement européen 2016/679, vous disposez à l’égard de Blot Immobilier, des droits d’accès, de rectification, de portabilité et d’effacement de vos données personnelles, ainsi que du droit d’opposition au traitement. Pour connaître et exercer vos droits, nous vous invitons à consulter notre politique de protection des données.

      Nous vous informons de l’existence de la liste d’opposition au démarchage téléphonique « Bloctel », sur laquelle vous pouvez vous inscrire.“