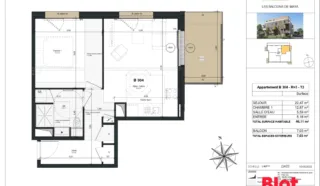
Location Appartement VANNES