LOCATION/VENTE Programme neuf de bureaux - NANTES EST - HALUCHERE - 4 360 495 € net vendeur

Nouveauté

À vendre / À louer

Programme neuf de bureaux NANTES EST HALUCHERE

Divisible dès 271.5 m²

Réf : 1079-23

Le bien est situé à : Nantes Nord-Est

Nantes Nord-Est

Prix de vente net vendeur

*TVA en sus, frais notaire réduits
Honoraires en sus charge acquéreur

Loyer

*Honoraires en sus charge preneur
  • 1845 m²
  • Disponibilité :
    Nous consulter
portrait

Votre interlocuteur

Philippe CANTIN

Dans le quartier Haluchère, en plein renouveau, nous vous proposons à la vente ou à la location un nouveau programme de bureaux.

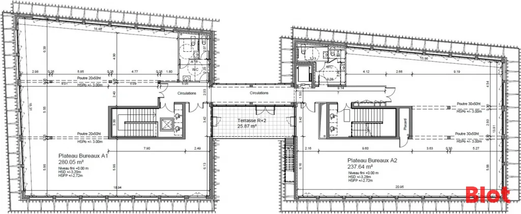
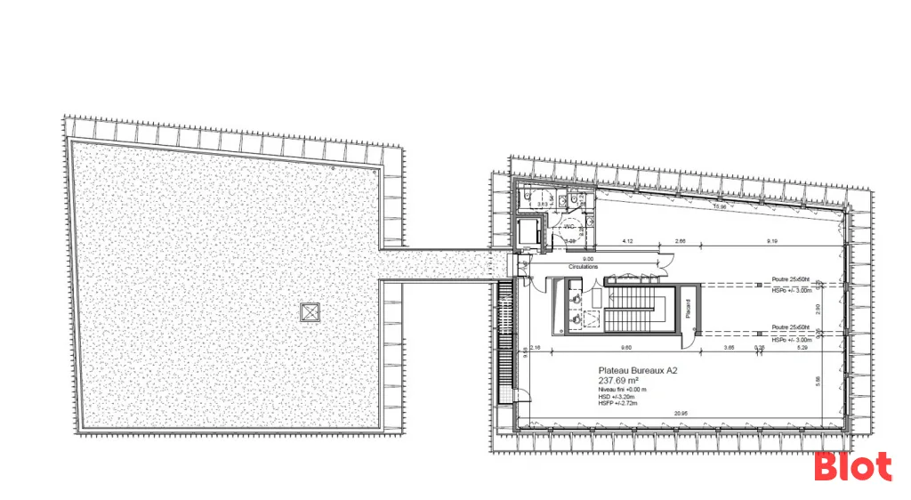
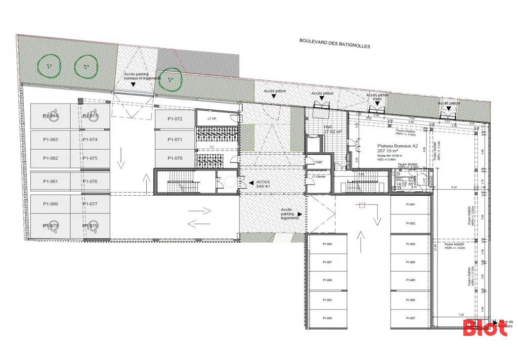
Deux immeubles de bureaux en R+3 reliés par une passerelle jusqu'au 2ème étage, présentant une surface totale de 1 845  m² SUBL.

Plateaux divisbiles de 277 m² à 609 m².

Terrasses accesibles au 1er et 2ème étage 

Parkings aériens privatifs (loyer/prix en sus).

Locaux livrés aménagés, non cloisonnés, non câblés et rafraichis.

Bâtiments normés et ERP.

Nous consulter pour plus d'information

Les informations sur les risques naturels, miniers, ou technologiques, auxquels ces biens sont exposés, sont disponibles sur le site www.georisques.gouv.fr

  • Etage(s) du bien ici présenté : RDC au 3ème étage
  • Ascenseur dans l'immeuble : Oui
  • Interphone : Oui
  • Visiophone : Oui
  • Année de construction : 2021
  • Type de plafonds : faux plafond acoustique
  • Climatisation : Oui
  • Mode de chauffage partie bureaux : pompe à chaleur réversible
  • Terrasse - Loggia : Oui m²
  • Avec stationnement(s) : Oui
  • Proximité ligne(s) de bus : Oui
  • Accès 4 voies immédiat : Oui
  • Complément libre : ventilation double flux

Localisation

Quartier Beaujoire / Ranzay
Proche commodités
Périphérique Est, route de Paris
Tram ligne 1
Bus C1, C6, 23, 77, 85, 95
A 15 min de la gare

Diagnostic de performance énergétique (DPE)

  • A
  • B
  • C
  • D
  • E
  • F
  • G
  • Indice d'émission de gaz à effet de serre (GES)

    • A
    • B
    • C
    • D
    • E
    • F
    • G

    Ma simulation de financement

    Durée du prêt

    ans
    ans
      %

      Mon remboursement mensuel

      0 €(1)
      (1) Cette simulation non contractuelle est communiquée à titre informatif, en se basant sur les taux moyens du marché.

      Envie de visiter ?
      Une question sur ce bien ?

      portrait

      Votre interlocuteur

      Philippe CANTIN

      Blot Nantes - Entreprise

      "Les Reflets" 5 rue Jacques Brel - CS 50393
      44819 SAINT-HERBLAIN Cedex

      Je choisis un ou des créneaux
      pour être recontacté

      Envie de visiter ?
      Une question sur ce bien ?

      mercredi • 17 décembre 2025

      jeudi • 18 décembre 2025

      vendredi • 19 décembre 2025

      lundi • 22 décembre 2025

      mardi • 23 décembre 2025

      mercredi • 24 décembre 2025

      jeudi • 25 décembre 2025

      vendredi • 26 décembre 2025

      lundi • 29 décembre 2025

      mardi • 30 décembre 2025

      mercredi • 31 décembre 2025

      jeudi • 1 janvier 2026

      vendredi • 2 janvier 2026

      * champs obligatoires
      * champs obligatoires

      (1) En validant ce formulaire, vous acceptez que les informations saisies soient exploitées dans le cadre de la mise en relation avec Blot Immobilier.
      Conformément au règlement européen 2016/679, vous disposez à l’égard de Blot Immobilier, des droits d’accès, de rectification, de portabilité et d’effacement de vos données personnelles, ainsi que du droit d’opposition au traitement. Pour connaître et exercer vos droits, nous vous invitons à consulter notre politique de protection des données.

      Nous vous informons de l’existence de la liste d’opposition au démarchage téléphonique « Bloctel », sur laquelle vous pouvez vous inscrire.“