À VENDRE - À LOUER - BUREAUX - 322 M² - NANTES - 936 000 € net vendeur

À vendre / À louer

BUREAUX 322 M² NANTES

Réf : 7294

Le bien est situé à : Centre-ville

Centre-ville

Prix de vente net vendeur

*droits enregistrement en sus
Honoraires en sus charge acquéreur

Loyer

*Honoraires en sus charge preneur
  • 322 m²
  • Disponibilité :
    Immédiate
portrait

Votre interlocuteur

Marine BATIGNE

Situés près de l'hypercentre, ils offrent une belle visibilité et une flexibilité d'aménagement.

 

Ces bureaux d'environ 322 m² en copropriété sont disponibles à la vente ou à la location.

Les bureaux comprennent :

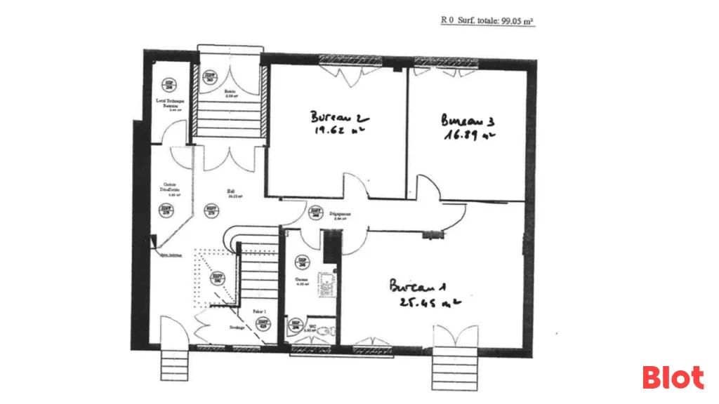
- RDC : 3 bureaux,

- A l'étage : 7 bureaux, 3 WC, 1 local technique.

 

De nombreuses places de parking sont disponibles.

 

Les informations sur les risques naturels, miniers, ou technologiques, auxquels ces biens sont exposés, sont disponibles sur le site www.georisques.gouv.fr

  • C'est un rez-de-chaussée (ou 1 partie est en RDC) : Oui
  • Bien en copropriété : Oui
  • Sécurité : Digicode ou contrôle d'accès : Oui
  • Interphone : Oui
  • Exposition des bureaux : sud - est
  • Câblage informatique : Oui
  • Catégorie de câblage : RJ45
  • Baie de brassage : Oui
  • Revêtements des sols : carrelage, moquette et parquet
  • Revêtements des murs : peinture
  • Type de plafonds : plafond
  • Type de fenêtres : double vitrage pvc
  • Mode de chauffage partie bureaux : gaz
  • Locaux fibrés : Oui
  • Avec stationnement(s) : Oui
  • Proximité ligne(s) de bus : Oui

Découvrez la répartition des surfaces au sein de l'immeuble

Niveau Type de
surface
Surface
en m²
Prix/m² Loyer
HT/m²/an
Loyer/
poste de
travail/an
RDC bureaux 99 2906.83 €
1er étage bureaux 223 2906.83 €

Localisation

René Bouhier
tram L1 Chantiers Navals

Diagnostic de performance énergétique (DPE)

  • A
  • B
  • C
  • D
  • E
  • F
  • G
  • Indice d'émission de gaz à effet de serre (GES)

    • A
    • B
    • C
    • D
    • E
    • F
    • G

    Ma simulation de financement

    Durée du prêt

    ans
    ans
      %

      Mon remboursement mensuel

      0 €(1)
      (1) Cette simulation non contractuelle est communiquée à titre informatif, en se basant sur les taux moyens du marché.

      Envie de visiter ?
      Une question sur ce bien ?

      portrait

      Votre interlocuteur

      Marine BATIGNE

      Blot Nantes - Entreprise

      "Les Reflets" 5 rue Jacques Brel - CS 50393
      44819 SAINT-HERBLAIN Cedex

      Je choisis un ou des créneaux
      pour être recontacté

      Envie de visiter ?
      Une question sur ce bien ?

      mardi • 14 avril 2026

      mercredi • 15 avril 2026

      jeudi • 16 avril 2026

      vendredi • 17 avril 2026

      lundi • 20 avril 2026

      mardi • 21 avril 2026

      mercredi • 22 avril 2026

      jeudi • 23 avril 2026

      vendredi • 24 avril 2026

      lundi • 27 avril 2026

      mardi • 28 avril 2026

      mercredi • 29 avril 2026

      jeudi • 30 avril 2026

      vendredi • 1 mai 2026

      * champs obligatoires
      * champs obligatoires

      (1) En validant ce formulaire, vous acceptez que les informations saisies soient exploitées dans le cadre de la mise en relation avec Blot Immobilier.
      Conformément au règlement européen 2016/679, vous disposez à l’égard de Blot Immobilier, des droits d’accès, de rectification, de portabilité et d’effacement de vos données personnelles, ainsi que du droit d’opposition au traitement. Pour connaître et exercer vos droits, nous vous invitons à consulter notre politique de protection des données.

      Nous vous informons de l’existence de la liste d’opposition au démarchage téléphonique « Bloctel », sur laquelle vous pouvez vous inscrire.“