À VENDRE - BUREAUX - 16 m² - LANDERNEAU - 52 575 € net vendeur

Différentes opportunités ici

À vendre

BUREAUX 16 m² LANDERNEAU

Réf : 2688-33-08

Le bien est situé à : Landerneau

Landerneau

Prix de vente net vendeur

*TVA en sus, frais notaire réduits
Honoraires en sus charge acquéreur
  • 15 m²
  • Disponibilité :
    Nous consulter
portrait

Votre interlocuteur

Pierre BERNARD

À vendre à Landerneau : bureaux d'environ 16 m² avec belle visibilité.

✨ Découvrez ces locaux neufs, classés ERP 5ème catégorie, offrant un accès PMR et un ascenseur pour un confort optimal.

Situés en entrée de ville, le long de la rocade, ces bureaux bénéficient d'une excellente accessibilité grâce à la proximité des transports en commun, de la gare SNCF.

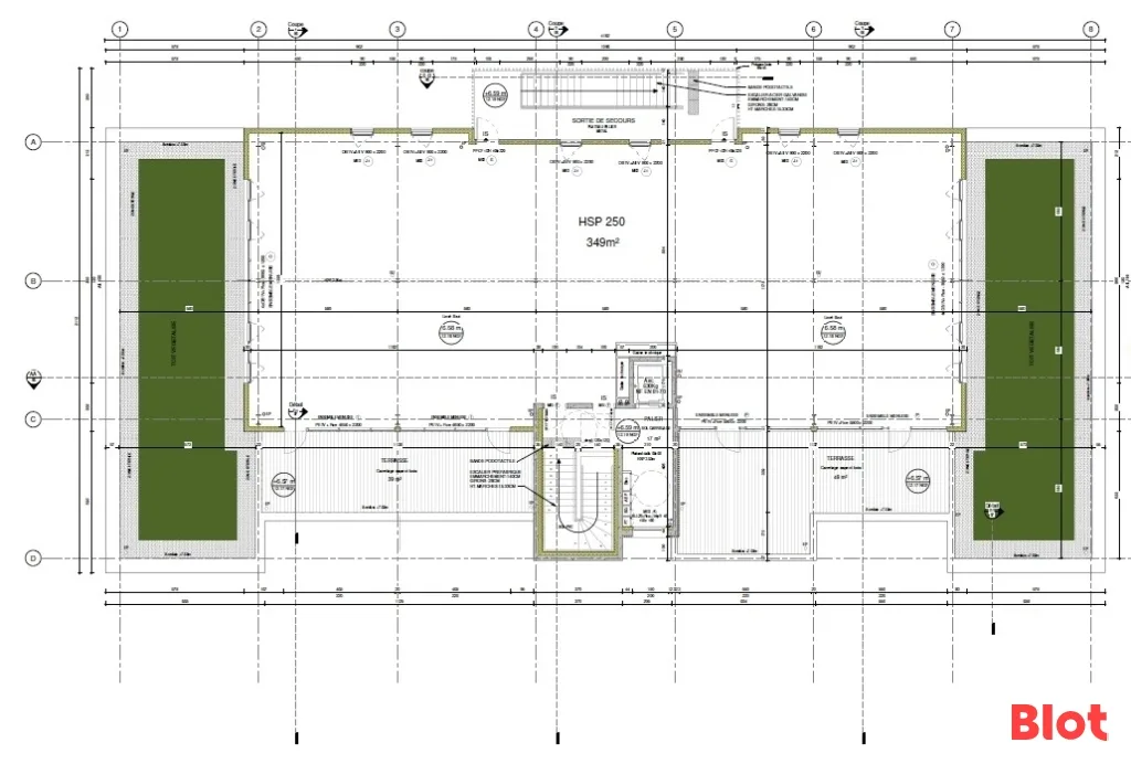
Ensemble de 10 bureaux aménagés et avec des espaces communs (salle d'attente, sanitaires, kitchenette, espace convivialité et terrasse) allant de 13.80 m² à 45,30 m².

🚀 Parmi les points forts de ce bien : nouvelle zone de loisirs à proximité, et une localisation stratégique à quelques pas du centre-ville.

Les informations sur les risques naturels, miniers, ou technologiques, auxquels ces biens sont exposés, sont disponibles sur le site www.georisques.gouv.fr

  • Belle visibilité : Oui
  • C'est un rez-de-chaussée (ou 1 partie est en RDC) : Oui
  • Ascenseur dans l'immeuble : Oui
  • Année de construction : 2022
  • Revêtements des sols : brut de beton
  • Revêtements des murs : brut de beton
  • Type de plafonds : brut de beton
  • Terrasse - Loggia : Oui m²
  • Prévoir travaux de rénovation : Oui
  • Avec stationnement(s) : Oui
  • Proximité ligne(s) de bus : Oui
  • Accès 4 voies immédiat : Oui
  • Proximité Gare SNCF : Oui

Localisation

En entrée de ville, le long de la rocade, axe très passant.
À proximité du centre-ville, et des transports en commun.

Diagnostic de performance énergétique (DPE)

  • A
  • B
  • C
  • D
  • E
  • F
  • G
  • Indice d'émission de gaz à effet de serre (GES)

    • A
    • B
    • C
    • D
    • E
    • F
    • G

    Ma simulation de financement

    Durée du prêt

    ans
    ans
      %

      Mon remboursement mensuel

      0 €(1)
      (1) Cette simulation non contractuelle est communiquée à titre informatif, en se basant sur les taux moyens du marché.

      Envie de visiter ?
      Une question sur ce bien ?

      portrait

      Votre interlocuteur

      Pierre BERNARD

      Blot Brest - Entreprise

      26 rue Algésiras
      29200 BREST

      Je choisis un ou des créneaux
      pour être recontacté

      Envie de visiter ?
      Une question sur ce bien ?

      jeudi • 30 avril 2026

      vendredi • 1 mai 2026

      lundi • 4 mai 2026

      mardi • 5 mai 2026

      mercredi • 6 mai 2026

      jeudi • 7 mai 2026

      vendredi • 8 mai 2026

      lundi • 11 mai 2026

      mardi • 12 mai 2026

      mercredi • 13 mai 2026

      jeudi • 14 mai 2026

      vendredi • 15 mai 2026

      * champs obligatoires
      * champs obligatoires

      (1) En validant ce formulaire, vous acceptez que les informations saisies soient exploitées dans le cadre de la mise en relation avec Blot Immobilier.
      Conformément au règlement européen 2016/679, vous disposez à l’égard de Blot Immobilier, des droits d’accès, de rectification, de portabilité et d’effacement de vos données personnelles, ainsi que du droit d’opposition au traitement. Pour connaître et exercer vos droits, nous vous invitons à consulter notre politique de protection des données.

      Nous vous informons de l’existence de la liste d’opposition au démarchage téléphonique « Bloctel », sur laquelle vous pouvez vous inscrire.“