A VENDRE - MAISON MEDICALE- SURFACE 200 m² - BRUZ - 764 000 € net vendeur

Exclusivité

À vendre

MAISON MEDICALE- SURFACE 200 m² BRUZ

Réf : 8399

Le bien est situé à : Ouest de Rennes

Ouest de Rennes

Prix de vente net vendeur

*TVA incluse
Honoraires en sus charge acquéreur
  • 200 m²
  • Disponibilité :
    T3 2027
portrait

Votre interlocuteur

Alexandre ROGGIANI

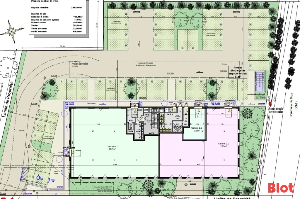
En exclusivité - Maison de Santé à BRUZ ! 

 

Un nouveau Pôle Médical va voir le jour dans le quartier de Vert Buisson.

 

Nous vous proposons dans un bâtiment en R+2 de 200 m² environ (182 m² de surface privative) de locaux dédiés à la santé. Livré aménagé, non-cloisonné et climatisé.

 

En sus 1 place de stationnement tous les 70 m² acquis (9.600,00€/unité) !

A saisir ! 

* Tous les prix sont réputés T.T.C, honoraires compris et hors parking.

Les informations sur les risques naturels, miniers, ou technologiques, auxquels ces biens sont exposés, sont disponibles sur le site www.georisques.gouv.fr

  • Belle visibilité : Oui
  • C'est un rez-de-chaussée (ou 1 partie est en RDC) : Oui
  • Bien en copropriété : Oui
  • Ascenseur dans l'immeuble : Oui
  • Bâtiment ERT (code du travail) : Oui
  • Sécurité : Digicode ou contrôle d'accès : Oui
  • Interphone : Oui
  • Année de construction : 2027
  • Exposition des bureaux : toutes
  • Espaces mutualisés : Oui
  • Services mutualisés : Oui
  • Type d'éclairage : dalles led
  • Revêtements des sols : linoléum
  • Revêtements des murs : placo peint
  • Type de plafonds : dalles de faux-plafonds
  • Type de fenêtres : double vitrage
  • Climatisation : Oui
  • Local / Espace 2 roues : Oui
  • Locaux fibrés : Oui
  • Avec stationnement(s) : Oui
  • Proximité ligne(s) de bus : Oui
  • Accès 4 voies immédiat : Oui

Localisation

Au sein du vert buisson
Commerces et services
Offres de restauration
A proximité des axes routiers

Diagnostic de performance énergétique (DPE)

  • A
  • B
  • C
  • D
  • E
  • F
  • G
  • Indice d'émission de gaz à effet de serre (GES)

    • A
    • B
    • C
    • D
    • E
    • F
    • G

    Ma simulation de financement

    Durée du prêt

    ans
    ans
      %

      Mon remboursement mensuel

      0 €(1)
      (1) Cette simulation non contractuelle est communiquée à titre informatif, en se basant sur les taux moyens du marché.

      Envie de visiter ?
      Une question sur ce bien ?

      portrait

      Votre interlocuteur

      Alexandre ROGGIANI

      Blot Rennes - Entreprise

      93 avenue Henri Fréville CS 50815
      35208 RENNES Cedex 2

      Je choisis un ou des créneaux
      pour être recontacté

      Envie de visiter ?
      Une question sur ce bien ?

      jeudi • 30 avril 2026

      vendredi • 1 mai 2026

      lundi • 4 mai 2026

      mardi • 5 mai 2026

      mercredi • 6 mai 2026

      jeudi • 7 mai 2026

      vendredi • 8 mai 2026

      lundi • 11 mai 2026

      mardi • 12 mai 2026

      mercredi • 13 mai 2026

      jeudi • 14 mai 2026

      vendredi • 15 mai 2026

      * champs obligatoires
      * champs obligatoires

      (1) En validant ce formulaire, vous acceptez que les informations saisies soient exploitées dans le cadre de la mise en relation avec Blot Immobilier.
      Conformément au règlement européen 2016/679, vous disposez à l’égard de Blot Immobilier, des droits d’accès, de rectification, de portabilité et d’effacement de vos données personnelles, ainsi que du droit d’opposition au traitement. Pour connaître et exercer vos droits, nous vous invitons à consulter notre politique de protection des données.

      Nous vous informons de l’existence de la liste d’opposition au démarchage téléphonique « Bloctel », sur laquelle vous pouvez vous inscrire.“