À VENDRE - BUREAUX - 62 M² - NANTES - 180 000 € net vendeur

À vendre

BUREAUX 62 M² NANTES

Réf : 1146-23

Le bien est situé à : Centre-ville

Centre-ville

Prix de vente net vendeur

*droits enregistrement en sus
Honoraires en sus charge acquéreur
  • 62 m²
  • Disponibilité :
    A convenir
portrait

Votre interlocuteur

Marine BATIGNE

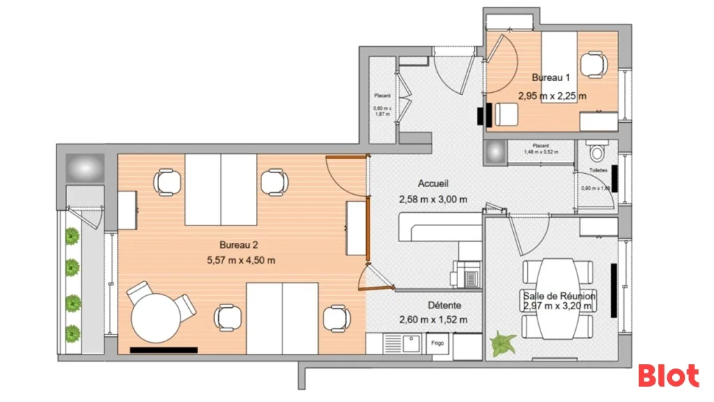
À vendre à Nantes, ces bureaux en rez-de-chaussée d'environ 62 m² sont parfaits pour l'exercice d'une profession libérale.

Les locaux comprennent une entrée avec accueil, 2 bureaux, une grande pièce avec kitchenette, un WC et une cave. 

Proche du rond-point de Rennes, ces bureaux sont situés sur un axe passant.

À proximité des transports.

Local 2 roues.

Les informations sur les risques naturels, miniers, ou technologiques, auxquels ces biens sont exposés, sont disponibles sur le site www.georisques.gouv.fr

  • Belle visibilité : Oui
  • C'est un rez-de-chaussée (ou 1 partie est en RDC) : Oui
  • Bien en copropriété : Oui
  • Ascenseur dans l'immeuble : Oui
  • Sécurité : Digicode ou contrôle d'accès : Oui
  • Interphone : Oui
  • Exposition des bureaux : nord - sud
  • Câblage informatique : Oui
  • Catégorie de câblage : RJ45
  • Baie de brassage : Oui
  • Point d'eau dans pièce principale : Oui
  • Espace cuisine / cafétéria dans local : Oui
  • Type d'éclairage : dalles led
  • Revêtements des sols : carrelage et pvc
  • Revêtements des murs : peinture
  • Type de plafonds : dalles
  • Type de fenêtres : double vitrage
  • Climatisation : Oui
  • Mode de chauffage partie bureaux : gaz collectif
  • Terrasse - Loggia : Oui m²
  • Local / Espace 2 roues : Oui
  • Volets extérieurs : Oui
  • Locaux fibrés : Oui
  • Proximité ligne(s) de bus : Oui

Localisation

Rond point de Rennes

Diagnostic de performance énergétique (DPE)

  • A
  • B
  • C
  • D
  • E
  • F
  • G
  • Indice d'émission de gaz à effet de serre (GES)

    • A
    • B
    • C
    • D
    • E
    • F
    • G

    Ma simulation de financement

    Durée du prêt

    ans
    ans
      %

      Mon remboursement mensuel

      0 €(1)
      (1) Cette simulation non contractuelle est communiquée à titre informatif, en se basant sur les taux moyens du marché.

      Envie de visiter ?
      Une question sur ce bien ?

      portrait

      Votre interlocuteur

      Marine BATIGNE

      Blot Nantes - Entreprise

      "Les Reflets" 5 rue Jacques Brel - CS 50393
      44819 SAINT-HERBLAIN Cedex

      Je choisis un ou des créneaux
      pour être recontacté

      Envie de visiter ?
      Une question sur ce bien ?

      mardi • 16 décembre 2025

      mercredi • 17 décembre 2025

      jeudi • 18 décembre 2025

      vendredi • 19 décembre 2025

      lundi • 22 décembre 2025

      mardi • 23 décembre 2025

      mercredi • 24 décembre 2025

      jeudi • 25 décembre 2025

      vendredi • 26 décembre 2025

      lundi • 29 décembre 2025

      mardi • 30 décembre 2025

      mercredi • 31 décembre 2025

      jeudi • 1 janvier 2026

      vendredi • 2 janvier 2026

      * champs obligatoires
      * champs obligatoires

      (1) En validant ce formulaire, vous acceptez que les informations saisies soient exploitées dans le cadre de la mise en relation avec Blot Immobilier.
      Conformément au règlement européen 2016/679, vous disposez à l’égard de Blot Immobilier, des droits d’accès, de rectification, de portabilité et d’effacement de vos données personnelles, ainsi que du droit d’opposition au traitement. Pour connaître et exercer vos droits, nous vous invitons à consulter notre politique de protection des données.

      Nous vous informons de l’existence de la liste d’opposition au démarchage téléphonique « Bloctel », sur laquelle vous pouvez vous inscrire.“