À VENDRE - LOCAUX D'ACTIVITÉS - 332 M² - SAINT HERBLAIN - 601 975 € net vendeur

À vendre

LOCAUX D'ACTIVITÉS 332 M² SAINT HERBLAIN

Réf : 8439

Le bien est situé à : Nantes Nord-Ouest

Nantes Nord-Ouest

Prix de vente net vendeur

*TVA en sus, frais notaire réduits
Honoraires en sus charge acquéreur
  • 332 m²
  • Disponibilité :
    T4 2026
portrait

Votre interlocuteur

Guillaume FOUMINET

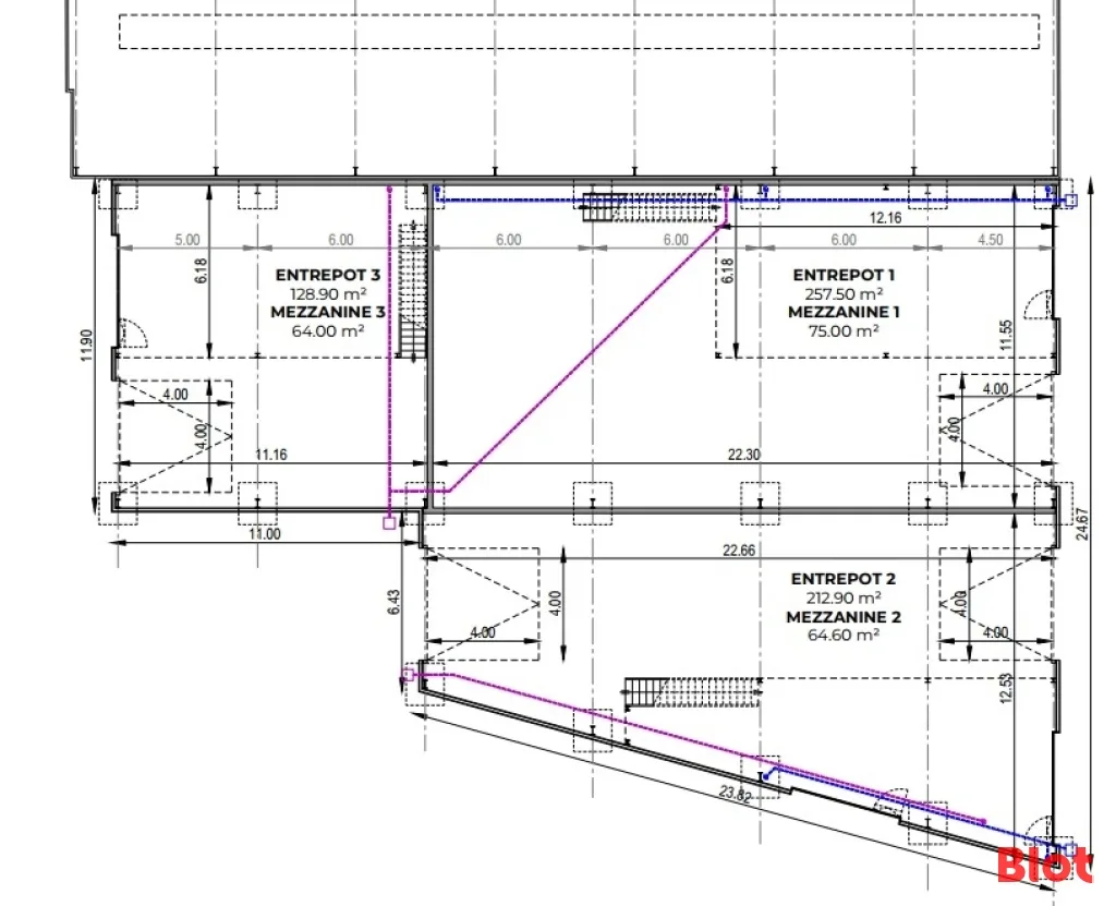
Nous vous proposons à la vente un local d'activité de 332 m² comprenant 257 m² au sol et 75 m² en mezzanine avec 5 places de parking privatives.

Une autre cellule est disponible de 193 m² comprenant 129 m² au sol et 64 m² en mezzanine.

Possibiliter de fusionner. 

Belle hauteur - ZA Dynamique - Site clos et sécurisé. 

Livraison brut de béton fin 2026.

Les informations sur les risques naturels, miniers, ou technologiques, auxquels ces biens sont exposés, sont disponibles sur le site www.georisques.gouv.fr

  • Bien en copropriété : Oui
  • Année de construction : 2026
  • Type d'éclairage : led
  • Couverture : bac acier
  • Ossature : métallique
  • Bardage : double peau
  • Isolation : Oui
  • Hauteur sous faîtage : 7 mètres
  • Hauteur sous sablière : 7 mètres
  • Nombre de portes sectionnelles : 1
  • Terrain bitumé : Oui
  • Terrain clôturé : Oui
  • Portail à l'entrée du terrain : Oui
  • Aire de manoeuvres : Oui
  • Accès poids lourds : Oui
  • Voirie lourde : Oui
  • Avec stationnement(s) : Oui
  • Proximité ligne(s) de bus : Oui
  • Accès 4 voies immédiat : Oui

Localisation

ZA dynamique Proche périphérique et 4 voies

Diagnostic de performance énergétique (DPE)

  • A
  • B
  • C
  • D
  • E
  • F
  • G
  • Indice d'émission de gaz à effet de serre (GES)

    • A
    • B
    • C
    • D
    • E
    • F
    • G

    Ma simulation de financement

    Durée du prêt

    ans
    ans
      %

      Mon remboursement mensuel

      0 €(1)
      (1) Cette simulation non contractuelle est communiquée à titre informatif, en se basant sur les taux moyens du marché.

      Envie de visiter ?
      Une question sur ce bien ?

      portrait

      Votre interlocuteur

      Guillaume FOUMINET

      Blot Nantes - Entreprise

      "Les Reflets" 5 rue Jacques Brel - CS 50393
      44819 SAINT-HERBLAIN Cedex

      Je choisis un ou des créneaux
      pour être recontacté

      Envie de visiter ?
      Une question sur ce bien ?

      mardi • 28 avril 2026

      mercredi • 29 avril 2026

      jeudi • 30 avril 2026

      vendredi • 1 mai 2026

      lundi • 4 mai 2026

      mardi • 5 mai 2026

      mercredi • 6 mai 2026

      jeudi • 7 mai 2026

      vendredi • 8 mai 2026

      lundi • 11 mai 2026

      mardi • 12 mai 2026

      mercredi • 13 mai 2026

      jeudi • 14 mai 2026

      vendredi • 15 mai 2026

      * champs obligatoires
      * champs obligatoires

      (1) En validant ce formulaire, vous acceptez que les informations saisies soient exploitées dans le cadre de la mise en relation avec Blot Immobilier.
      Conformément au règlement européen 2016/679, vous disposez à l’égard de Blot Immobilier, des droits d’accès, de rectification, de portabilité et d’effacement de vos données personnelles, ainsi que du droit d’opposition au traitement. Pour connaître et exercer vos droits, nous vous invitons à consulter notre politique de protection des données.

      Nous vous informons de l’existence de la liste d’opposition au démarchage téléphonique « Bloctel », sur laquelle vous pouvez vous inscrire.“