À VENDRE - LOCAUX COMMERCIAUX - 170 M² - SAINT HERBLAIN - 395 001 € net vendeur

Neuf - brut de béton

À vendre

LOCAUX COMMERCIAUX 170 M² SAINT HERBLAIN

Réf : 7924

Le bien est situé à : Nantes Nord-Ouest

Nantes Nord-Ouest

Prix de vente net vendeur

*TVA en sus, taux en vigueur
Honoraires en sus charge acquéreur
  • 170 m²
  • Disponibilité :
    Immédiate
portrait

Votre interlocuteur

Yoann GOUELOU

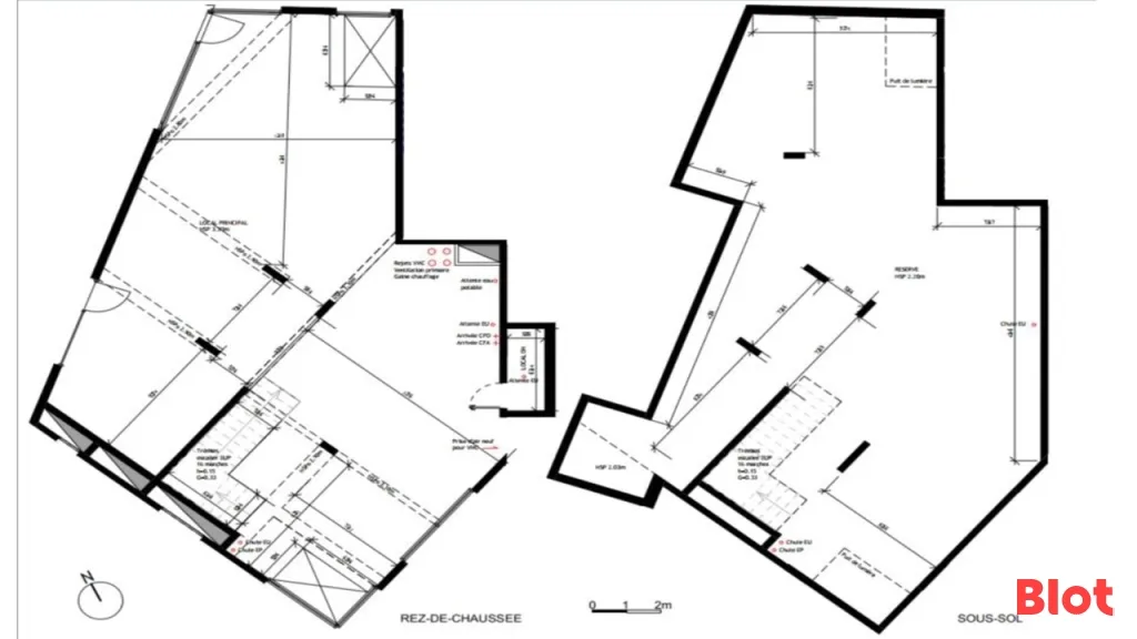
Local commercial à vendre à Saint-Herblain, d'une surface totale d'environ 170 m² au rez-de-chaussée + 70 m² au sous-sol d'un seul tenant.

Ce bien offre un accès PMR et se situe sur le Boulevard Charles Gautier, en face de la clinique, assurant une belle visibilité.

Emplacement stratégique avec une visibilité optimale.

Proximité immédiate de la clinique.

Stationnement disponible avec 11 parkings.

Les informations sur les risques naturels, miniers, ou technologiques, auxquels ces biens sont exposés, sont disponibles sur le site www.georisques.gouv.fr

  • Belle visibilité : Oui
  • C'est un rez-de-chaussée (ou 1 partie est en RDC) : Oui
  • Bien en copropriété : Oui
  • Bâtiment ERT (code du travail) : Oui
  • Année de construction : 2024
  • Avec stationnement(s) : Oui
  • Proximité ligne(s) de bus : Oui
  • Accès 4 voies immédiat : Oui

Localisation

Sur le Bd Charles Gautier, en face de la clinique

Diagnostic de performance énergétique (DPE)

  • A
  • B
  • C
  • D
  • E
  • F
  • G
  • Indice d'émission de gaz à effet de serre (GES)

    • A
    • B
    • C
    • D
    • E
    • F
    • G

    Ma simulation de financement

    Durée du prêt

    ans
    ans
      %

      Mon remboursement mensuel

      0 €(1)
      (1) Cette simulation non contractuelle est communiquée à titre informatif, en se basant sur les taux moyens du marché.

      Envie de visiter ?
      Une question sur ce bien ?

      portrait

      Votre interlocuteur

      Yoann GOUELOU

      Blot Nantes - Entreprise

      "Les Reflets" 5 rue Jacques Brel - CS 50393
      44819 SAINT-HERBLAIN Cedex

      Je choisis un ou des créneaux
      pour être recontacté

      Envie de visiter ?
      Une question sur ce bien ?

      mardi • 28 avril 2026

      mercredi • 29 avril 2026

      jeudi • 30 avril 2026

      vendredi • 1 mai 2026

      lundi • 4 mai 2026

      mardi • 5 mai 2026

      mercredi • 6 mai 2026

      jeudi • 7 mai 2026

      vendredi • 8 mai 2026

      lundi • 11 mai 2026

      mardi • 12 mai 2026

      mercredi • 13 mai 2026

      jeudi • 14 mai 2026

      vendredi • 15 mai 2026

      * champs obligatoires
      * champs obligatoires

      (1) En validant ce formulaire, vous acceptez que les informations saisies soient exploitées dans le cadre de la mise en relation avec Blot Immobilier.
      Conformément au règlement européen 2016/679, vous disposez à l’égard de Blot Immobilier, des droits d’accès, de rectification, de portabilité et d’effacement de vos données personnelles, ainsi que du droit d’opposition au traitement. Pour connaître et exercer vos droits, nous vous invitons à consulter notre politique de protection des données.

      Nous vous informons de l’existence de la liste d’opposition au démarchage téléphonique « Bloctel », sur laquelle vous pouvez vous inscrire.“