LOCATION - BUREAUX - CENTRE VILLE - NANTES - 110 m² - 22 200 € HT HC/an

À louer

BUREAUX CENTRE VILLE NANTES 110 m²

Réf : 1104-23

Le bien est situé à : Centre-ville

Centre-ville

Loyer

*Honoraires en sus charge preneur
  • 111 m²
  • Disponibilité :
    A convenir
portrait

Votre interlocuteur

Marine BATIGNE

Vous recherchez des bureaux de caractère pour votre entreprise ? Ces bureaux sont faits pour vous !

Dans l'hyper centre de Nantes, nous vous proposons un appartement de bureaux très lumineux.

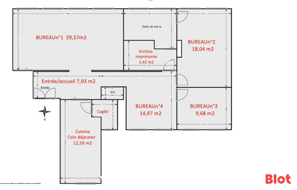
Il se compose d'un open space, de deux bureaux, 1 cuisine équipée, 1 salle de bain et d'un WC. L’espace a été entièrement rénové pour vous !

Une belle adresse au cœur du quartier Graslin, quartier commerçant et incontournable de Nantes qui sera apprécié par vos collaborateurs.

Les informations sur les risques naturels, miniers, ou technologiques, auxquels ces biens sont exposés, sont disponibles sur le site www.georisques.gouv.fr

  • Bien en copropriété : Oui
  • Ascenseur dans l'immeuble : Oui
  • Interphone : Oui
  • Année de construction : 50
  • Exposition des bureaux : sud-nord
  • Baie de brassage : Oui
  • Revêtements des sols : parquet
  • Revêtements des murs : peinture
  • Type de plafonds : plafond
  • Type de fenêtres : double vitrage
  • Locaux fibrés : Oui
  • Proximité ligne(s) de bus : Oui

Localisation

En plein centre ville de Nantes. Proximité commerces et transports.

Diagnostic de performance énergétique (DPE)

  • A
  • B
  • C
  • D
  • E
  • F
  • G
  • Indice d'émission de gaz à effet de serre (GES)

    • A
    • B
    • C
    • D
    • E
    • F
    • G

    Envie de visiter ?
    Une question sur ce bien ?

    portrait

    Votre interlocuteur

    Marine BATIGNE

    Blot Nantes - Entreprise

    "Les Reflets" 5 rue Jacques Brel - CS 50393
    44819 SAINT-HERBLAIN Cedex

    Je choisis un ou des créneaux
    pour être recontacté

    Envie de visiter ?
    Une question sur ce bien ?

    mercredi • 21 janvier 2026

    jeudi • 22 janvier 2026

    vendredi • 23 janvier 2026

    lundi • 26 janvier 2026

    mardi • 27 janvier 2026

    mercredi • 28 janvier 2026

    jeudi • 29 janvier 2026

    vendredi • 30 janvier 2026

    lundi • 2 février 2026

    mardi • 3 février 2026

    mercredi • 4 février 2026

    jeudi • 5 février 2026

    vendredi • 6 février 2026

    * champs obligatoires
    * champs obligatoires

    (1) En validant ce formulaire, vous acceptez que les informations saisies soient exploitées dans le cadre de la mise en relation avec Blot Immobilier.
    Conformément au règlement européen 2016/679, vous disposez à l’égard de Blot Immobilier, des droits d’accès, de rectification, de portabilité et d’effacement de vos données personnelles, ainsi que du droit d’opposition au traitement. Pour connaître et exercer vos droits, nous vous invitons à consulter notre politique de protection des données.

    Nous vous informons de l’existence de la liste d’opposition au démarchage téléphonique « Bloctel », sur laquelle vous pouvez vous inscrire.“