À LOUER - BUREAUX 180 m² - PONTIVY - 24 300 € HT HC/an

À louer

BUREAUX 180 m² PONTIVY

Réf : 5249-63 / BX 1

Le bien est situé à : Secteur Pontivy

Secteur Pontivy

Loyer

*Honoraires en sus charge preneur
  • 180 m²
  • Disponibilité :
    Immédiate
portrait

Votre interlocuteur

Solenne LE PRIOL

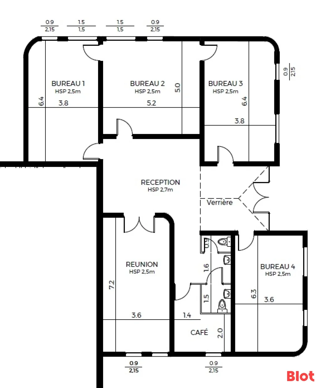
À Pontivy, découvrez ces bureaux à la location d'une surface totale d'environ 180 m². Ce bien offre un accès PMR, idéal pour accueillir vos collaborateurs et clients dans un cadre professionnel adapté. Situé au sein du Parc d'Activité de la Niel, l'ensemble immobilier bénéficie d'une visibilité optimale sur la D768 🚗, axe stratégique entre Lorient et Saint-Brieuc.

Le plateau se compose ainsi : 

-un espace accueil

- 4 bureaux

- salle de pause

- salle de réunion

- sanitaires

Profitez également de stationnements 🅿️

Pour plus d'informations ou pour organiser une visite, n'hésitez pas à nous contacter.

Les informations sur les risques naturels, miniers, ou technologiques, auxquels ces biens sont exposés, sont disponibles sur le site www.georisques.gouv.fr

  • Belle visibilité : Oui
  • C'est un rez-de-chaussée (ou 1 partie est en RDC) : Oui
  • Année de construction : 1997
  • Câblage informatique : Oui
  • Baie de brassage : Oui
  • Espace cuisine / cafétéria dans local : Oui
  • Type d'éclairage : leds
  • Revêtements des sols : moquette/carrelage
  • Revêtements des murs : placo
  • Type de plafonds : faux plafond
  • Type de fenêtres : double vitrage
  • Mode de chauffage partie bureaux : elec
  • Avec stationnement(s) : Oui
  • Accès 4 voies immédiat : Oui

Localisation

AU SEIN DU PARC D'ACTIVITE DE LA NIEL
VISIBLITE DE LA D768 (AXE LORIENT/ST BRIEUC

Diagnostic de performance énergétique (DPE)

  • A
  • B
  • C
  • D
  • E
  • F
  • G
  • Indice d'émission de gaz à effet de serre (GES)

    • A
    • B
    • C
    • D
    • E
    • F
    • G

    Envie de visiter ?
    Une question sur ce bien ?

    portrait

    Votre interlocuteur

    Solenne LE PRIOL

    Blot Lorient - Entreprise

    39 rue de la Villeneuve - BP 60101
    56101 LORIENT Cedex

    Je choisis un ou des créneaux
    pour être recontacté

    Envie de visiter ?
    Une question sur ce bien ?

    lundi • 20 avril 2026

    mardi • 21 avril 2026

    mercredi • 22 avril 2026

    jeudi • 23 avril 2026

    vendredi • 24 avril 2026

    lundi • 27 avril 2026

    mardi • 28 avril 2026

    mercredi • 29 avril 2026

    jeudi • 30 avril 2026

    vendredi • 1 mai 2026

    lundi • 4 mai 2026

    mardi • 5 mai 2026

    mercredi • 6 mai 2026

    jeudi • 7 mai 2026

    * champs obligatoires
    * champs obligatoires

    (1) En validant ce formulaire, vous acceptez que les informations saisies soient exploitées dans le cadre de la mise en relation avec Blot Immobilier.
    Conformément au règlement européen 2016/679, vous disposez à l’égard de Blot Immobilier, des droits d’accès, de rectification, de portabilité et d’effacement de vos données personnelles, ainsi que du droit d’opposition au traitement. Pour connaître et exercer vos droits, nous vous invitons à consulter notre politique de protection des données.

    Nous vous informons de l’existence de la liste d’opposition au démarchage téléphonique « Bloctel », sur laquelle vous pouvez vous inscrire.“