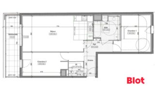
Achat Appartement RENNES